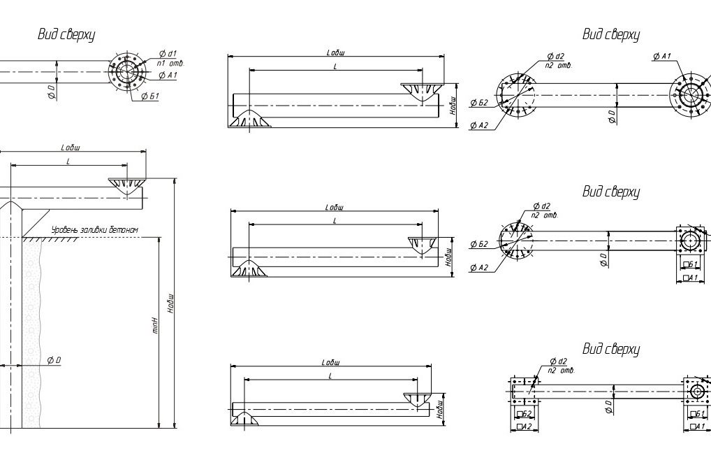
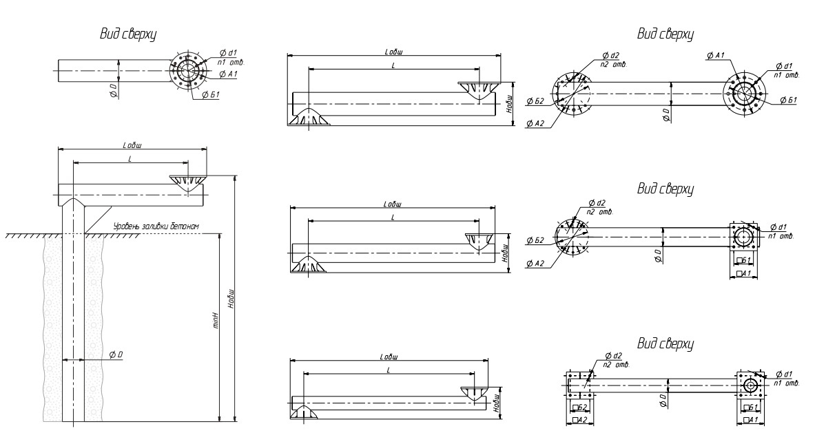
Прямая консоль
Прямые консоли имеют фланцы с отверстиями для совместного использования с закладной деталью фундамента


| Наименование | Масса, кг | L | Lобщ | Н | Hобщ | D | d1 | n1 | A1 | Б1 | d2 | n2 | A2 | Б2 | Тип |
| ЗДФ219-1700-2500Д400 (В-24/8/Д310-1,7-б) |
232 | 1,7 | 2,09 | 2,5 | 3,05 | 219 | М24 | 8 | 400 | 310 | Г-образная | ||||
| ЗДФ273-1700-2500Д500 (В-30/8/Д380-1,7-б) |
357 | 1,7 | 2,14 | 2,5 | 3,1 | 273 | М30 | 8 | 500 | 380 | Г-образная | ||||
| КЭФ219-1400Д420 (В-20/8/Д360-24/8/Д360-1,4-б) |
111,6 | 1,4 | 1,82 | 0,46 | 219 | М20 | 8 | 420 | 360 | М24 | 8 | 420 | 360 | Прямая | |
| КЭФ219-1700Д400 (В-24/8/Д310-24/8/Д310-1,7-б) |
130 | 1,7 | 2,1 | 0,46 | 219 | М24 | 8 | 400 | 310 | М24 | 8 | 400 | 310 | Прямая | |
| КЭФ219-2000Д400 (В-24/8/Д310-24/8/Д310-2,0-б) |
143,5 | 2 | 2,4 | 0,46 | 219 | М24 | 8 | 400 | 310 | М24 | 8 | 400 | 310 | Прямая |